
Utilização do produto: O produto foi concebido para a produção de petróleo de elevação a gás.
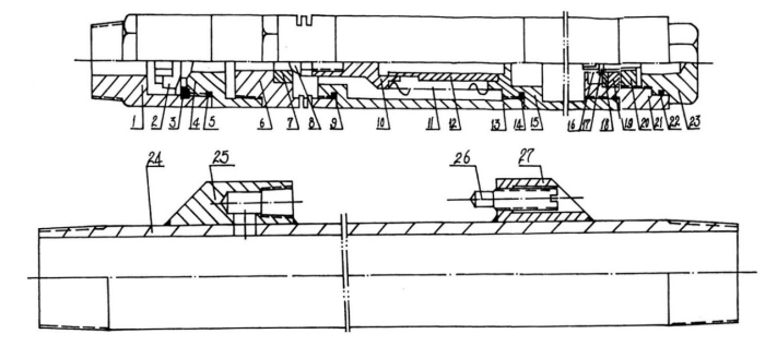
Estrutura: Como mostra a figura, o dispositivo de elevação a gás é constituído por duas partes principais: uma é a válvula de elevação a gás (artigos 1 a 23) e a outra é a parte fixa do cilindro de trabalho (artigos 24 a 27).
Princípio de funcionamento
O gás de alta pressão entra na válvula de elevação de gás a partir do espaço anular da tubagem e do revestimento, através do orifício lateral do corpo da válvula inferior (item 6). Quando a pressão do gás é superior à pressão necessária do gás azoto que atua na sua área efetiva dentro do fole, a cabeça da válvula (8) desce; o gás empurra a válvula de fluxo único (2) para fora a partir dos orifícios internos das peças 4 e 6 e entra na tubagem através do orifício lateral na junta articulada da tubagem (24). Após o gás de alta pressão entrar na tubagem, pode elevar o líquido do solo conforme necessário, atingindo o objetivo de produção de petróleo de elevação de gás. A válvula de elevação de gás está instalada no exterior da coluna de tubagem. Quando os parâmetros de funcionamento da válvula de elevação de gás necessitam de ser ajustados, as tubagens devem ser retiradas.
Parâmetros técnicos:
Pressão de trabalho | Válvula de elevação de gás OD | Rosca de ligação da junta de tubo pequeno |
25MPa | 25mm | 2-7/8TBG |
Endereço:Sala 616, Fortune Plaza, Yungang Road, Zona Económica da Aviação
TELEFONE:+86 156 1779 7655
TEL:+86 371 85304855